Submit
Search
Logi sisse
eng
est
eng
Submit
Struktuur ja juhtimine
Avalikud dokumendid
Partnerid
Ajalugu
Ajalugu
Liikmed läbi aja
Fookuses
Arhitektuuripreemiad
Viited
Viited
Filmiriiul
Logi sisse
eng
est
eng
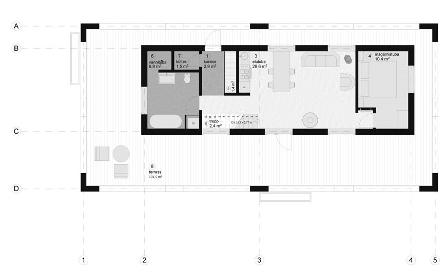
ROBINSON puhkemaja
Autorid
Lembit Tork
, Kadri Liivorg
Loomingu liik
Muu
Loomingu valmimise aasta
2009
Kirjeldus
Kuusalus
Kuusalus