Submit
Search
Logi sisse
eng
est
eng
Submit
Struktuur ja juhtimine
Avalikud dokumendid
Partnerid
Ajalugu
Ajalugu
Liikmed läbi aja
Fookuses
Arhitektuuripreemiad
Viited
Viited
Filmiriiul
Logi sisse
eng
est
eng
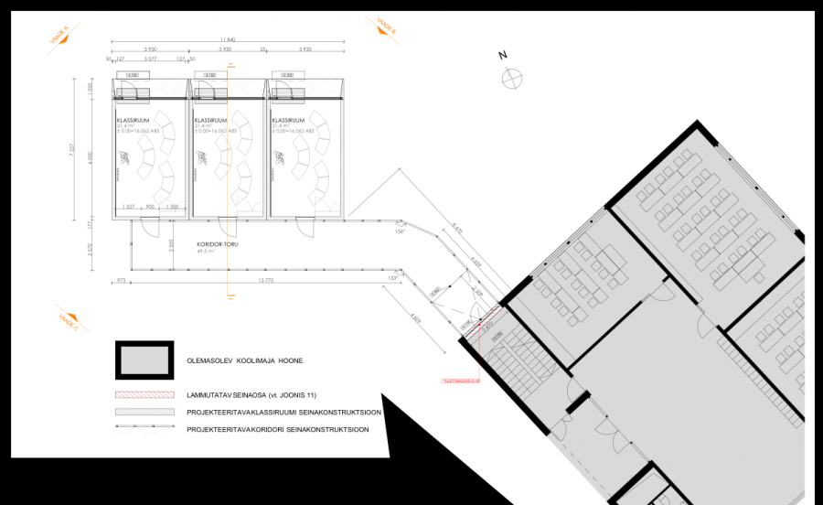
Rocca al Mare Kooli klassid
Autorid
Ülar Mark
,
Maria Alnek
Loomingu liik
Hoone
Loomingu valmimise aasta
2016
Ehitise valmimise aasta
2017
Tellija
Rocca al Mare Kool
Aadress
Vabaõhumuuseumi tee 8