Submit
Search
Logi sisse
eng
est
eng
Submit
Struktuur ja juhtimine
Avalikud dokumendid
Partnerid
Ajalugu
Ajalugu
Liikmed läbi aja
Fookuses
Arhitektuuripreemiad
Viited
Viited
Filmiriiul
Logi sisse
eng
est
eng
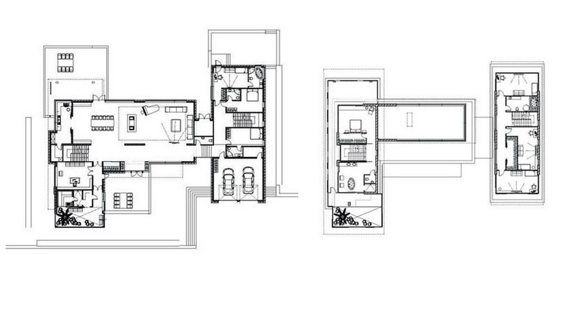
S-MAJA Lohusalus
Autorid
Lembit Tork
Loomingu liik
Muu
Loomingu valmimise aasta
2006