Submit
Search
Logi sisse
eng
est
eng
Submit
Struktuur ja juhtimine
Avalikud dokumendid
Partnerid
Ajalugu
Ajalugu
Liikmed läbi aja
Fookuses
Arhitektuuripreemiad
Viited
Viited
Filmiriiul
Logi sisse
eng
est
eng
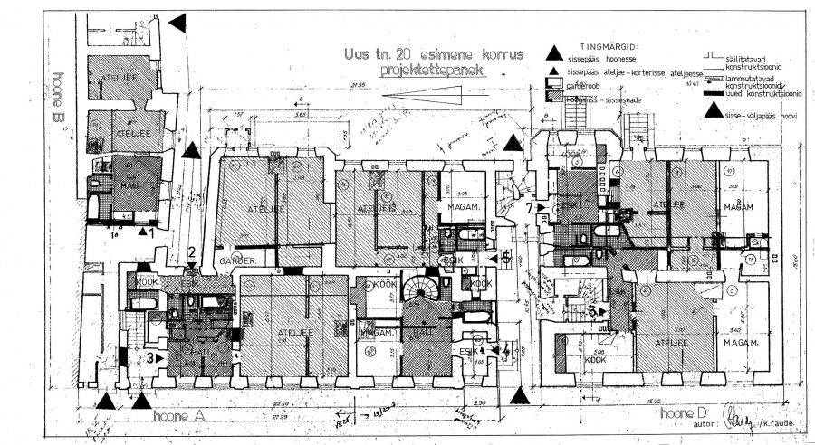
Uus. tn. 20. Ettepanekud Uus tn. 20 (hooned A,B,C,D) elumaja kohandamiseks kunstnike ateljeedeks
Autorid
Kuno Raude
Loomingu liik
Muu
Loomingu valmimise aasta
1974
Aadress
Tallinn Mererajoon Tallinna vanalinn Uus tänav 20