Submit
Search
Logi sisse
eng
est
eng
Submit
Struktuur ja juhtimine
Avalikud dokumendid
Partnerid
Ajalugu
Ajalugu
Liikmed läbi aja
Fookuses
Arhitektuuripreemiad
Viited
Viited
Filmiriiul
Logi sisse
eng
est
eng
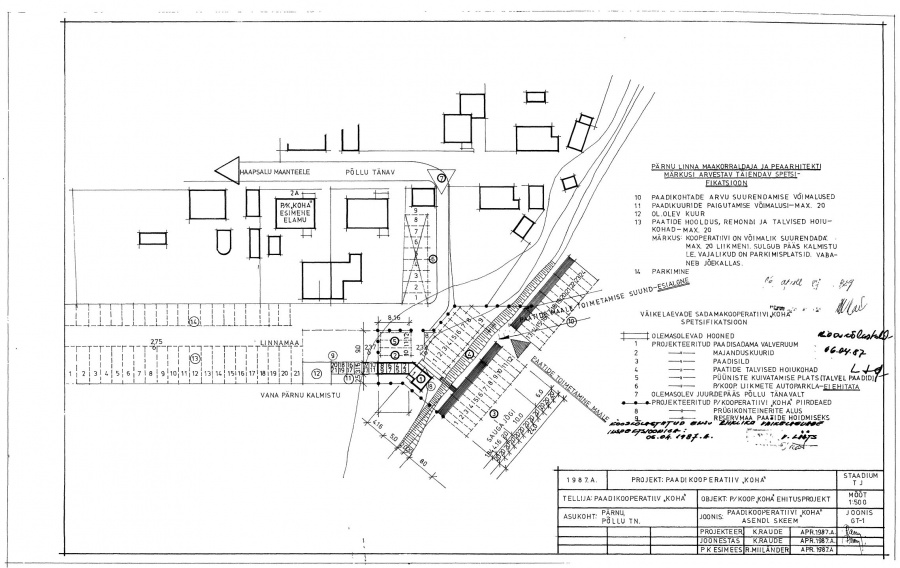
Väikelaevade sadamakooperatiivi “Koha” ehitusprojekt
Autorid
Kuno Raude
Loomingu liik
Muu
Loomingu valmimise aasta
1988
Tellija
Sadamakooperatiiv "Koha"
Aadress
Pärnu linn Vana-Pärnu linnaosa