Submit
Otsi
Logi sisse
est
est
eng
Submit
Uudised
Uudised
Uudised
Sündmused
Eesti Arhitektide Liidu Teataja
Liikmed
Liikmed
Liikmete nimekiri
Liikmete loomingu kaart
Liikmeks astumine
Logi sisse
Eesti Arhitektide Liit
Eesti Arhitektide Liit
Struktuur ja juhtimine
Juhtimine
Töögrupid ja komisjonid
Sektsioonid
Struktuur
Strateegia
Töötajad ja kontakt
Avalikud dokumendid
Põhikiri
Arhitektide kutse-eetika põhimõtted
Aukohtu tegevuskord
Arhitekti autoriõiguse meelespea
EALi liikme pöördumine oma autoriõiguste kaitseks
Autorsuse märkimise hea tava kokkulepe
Arhitektuuri valdkonna projekteerimise pädevuse jaotuse hea tava kokkulepe
Arhitektuuri- ja inseneeriaterminid
Partnerid
Kuuluvus organisatsioonidesse
Arhiluse Fond
Ajalugu
Ajalugu
Liikmed läbi aja
Intervjuud seeniorarhitektidega
Teenused ja taotlused
Teenused ja taotlused
Stipendiumid ja toetused
Kutsetunnistus
Täiendkoolituste süsteem
Tunnihinna kalkulaator
Arhitektuurivõistluste korraldamine ja konsultatsioon
Ekspertiisid
Koostöövõimalused
Tööpakkumised ja kuulutused
Arhitektuurivõistlused
Arhitektuurivõistlused
Võistluste nimekiri
Eesti arhitektuurivõistluste ja žürii liikme juhendid
Arhitektuurivõistluste korraldamine ja konsultatsioon
Fookuses
Fookuses
Fookuses
Ukraina linnafoorumid
Innovatsiooniloengud
Programm „Hea avalik ruum“
EAL 100
Kooliarhitektuur
Ruumipoliitika
Riigiarhitekti kontseptsioon (2025)
KOVide valimiste poliitikasoovitused (2025)
KOVide valimiste poliitikasoovitused: Tallinn (2025)
Elusaseme kättesaadavuse poliitika soovitused (2024)
Kaubanduspind ja hea linnaruum (2024)
Ehituse pikk vaade 2035 (2021)
Insolatsiooni kestuse arvutamise juhend (2020)
Kvaliteetse ruumi aluspõhimõtted (2019)
Ruumiloome ekspertrühm (2018)
Arhitektuurivaldkonna tegevuskava (2004)
Arhitektuur ja elukvaliteet (2004)
Eesti arhitektuuripoliitika (2002)
Euroopa arhitektuuripoliitika
Arhitektuuripreemiad
Arhitekti aastapreemia
Noore arhitekti preemia
ELAMU
VÄIKE
Tudengipreemia
Teenetemedalid
Eesti arhitektuuripreemiad
Viited
Liikmete loomingu kaart
Filmiriiul
Raamaturiiul
Näitused
Podcastid
Logi sisse
est
est
eng
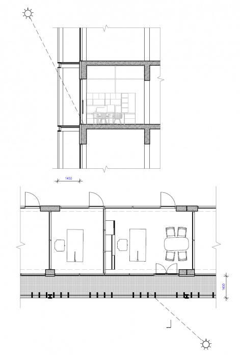
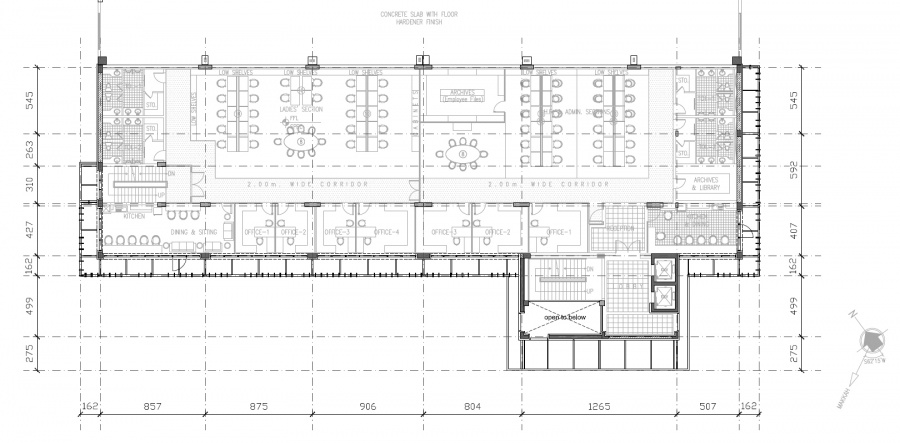
Büroohoone
Autorid
Jaan Kuusemets
, Kassem Ahmed Eida
Loomingu liik
Hoone
Loomingu valmimise aasta
2016
Ehitise valmimise aasta
2017
Tellija
Al Kuhaimi Group
Aadress
4 St, Dammam, Saudi Araabia