Submit
Otsi
Logi sisse
est
est
eng
Submit
Uudised
Uudised
Uudised
Sündmused
Eesti Arhitektide Liidu Teataja
Liikmed
Liikmed
Liikmete nimekiri
Liikmete loomingu kaart
Liikmeks astumine
Logi sisse
Eesti Arhitektide Liit
Eesti Arhitektide Liit
Struktuur ja juhtimine
Juhtimine
Töögrupid ja komisjonid
Sektsioonid
Struktuur
Strateegia
Töötajad ja kontakt
Avalikud dokumendid
Põhikiri
Arhitektide kutse-eetika põhimõtted
Aukohtu tegevuskord
Arhitekti autoriõiguse meelespea
EALi liikme pöördumine oma autoriõiguste kaitseks
Autorsuse märkimise hea tava kokkulepe
Arhitektuuri valdkonna projekteerimise pädevuse jaotuse hea tava kokkulepe
Arhitektuuri- ja inseneeriaterminid
Partnerid
Kuuluvus organisatsioonidesse
Arhiluse Fond
Ajalugu
Ajalugu
Liikmed läbi aja
Intervjuud seeniorarhitektidega
Teenused ja taotlused
Teenused ja taotlused
Stipendiumid ja toetused
Kutsetunnistus
Täiendkoolituste süsteem
Tunnihinna kalkulaator
Arhitektuurivõistluste korraldamine ja konsultatsioon
Ekspertiisid
Koostöövõimalused
Tööpakkumised ja kuulutused
Arhitektuurivõistlused
Arhitektuurivõistlused
Võistluste nimekiri
Eesti arhitektuurivõistluste ja žürii liikme juhendid
Arhitektuurivõistluste korraldamine ja konsultatsioon
Fookuses
Fookuses
Fookuses
Ukraina linnafoorumid
Innovatsiooniloengud
Programm „Hea avalik ruum“
EAL 100
Kooliarhitektuur
Ruumipoliitika
Riigiarhitekti kontseptsioon (2025)
KOVide valimiste poliitikasoovitused (2025)
KOVide valimiste poliitikasoovitused: Tallinn (2025)
Elusaseme kättesaadavuse poliitika soovitused (2024)
Kaubanduspind ja hea linnaruum (2024)
Ehituse pikk vaade 2035 (2021)
Insolatsiooni kestuse arvutamise juhend (2020)
Kvaliteetse ruumi aluspõhimõtted (2019)
Ruumiloome ekspertrühm (2018)
Arhitektuurivaldkonna tegevuskava (2004)
Arhitektuur ja elukvaliteet (2004)
Eesti arhitektuuripoliitika (2002)
Euroopa arhitektuuripoliitika
Arhitektuuripreemiad
Arhitekti aastapreemia
Noore arhitekti preemia
ELAMU
VÄIKE
Tudengipreemia
Teenetemedalid
Eesti arhitektuuripreemiad
Viited
Liikmete loomingu kaart
Filmiriiul
Raamaturiiul
Näitused
Podcastid
Logi sisse
est
est
eng
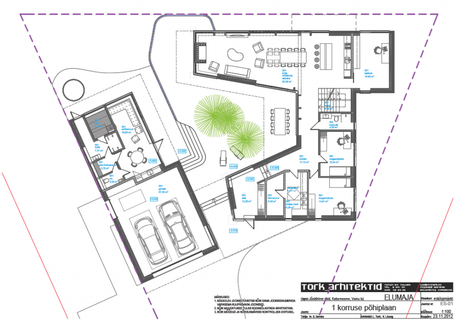
Lembit Tork
Aadress
T
Sünnipäev
04.06.1959
Mobiil
+372 509 4311
E-kiri
moc.liamg@krotmel
Koduleht
www.tork.ee
Kutsekvalifikatsioon
-
Loomingu kaart
Looming
VALGA LIDL KONKURSS
(2022)
KÜLITSE SKITSID
(2022)
VÕTMEHEINA ERAMU II
(2021)
HANE TN KORTERMAJA
(2021)
TISKRE KOOL LASTEAED, 2 koht
(2021)
ROHUNEEME Paarismaja
(2021)
KÄRDLA Riigimaja ideekonkurss
(2021)
Wedia Productions
Eesti Rahvusraamatukogu rekonstrueerimine
Tõnismägi 2, 10122 Tallinn (2021)
VORMSI REKONSTRUKTSIOON
(2020)
STALHUS SJOLUNDVEGEN
(2020)
Eramu Nõmmel- konkurss 1 koht
(2020)
VILDE ÄRIHOONE ja HOSTEL
(2019)
Ääsmäe külakeskus
(2019)
Toronto Eesti Maja Redo
(2019)
135 m2 ELEMENTMAJA tellimused
(2018)
TAMMETALU
(2017)
TILGU tee
(2016)
MERIVÄLJAL Eramu
(2016)
SAMBLIKU eramu auhinnatud
(2015)
SIDE LIIVA rekonstruktsioon
(2015)
LAANEVEERE konkurss 1 koht
(2015)
CLT PÕLVA kortermaja
(2015)
SUURETAMME retro-futuro
(2015)
PÄHKLISALU eramu
(2015)
2018 eramu Nõmmel
(2015)
MÄHEL eramu
(2014)
SUURUPIS rekonstruktsioon
(2014)
KÕRGEMÄE TEE eramu
(2013)
KAARNA JÄRV ideekonkurss
(2013)
ILMANDU KÜLA eramu
(2013)
TÄHTVERE paarismaja
(2013)
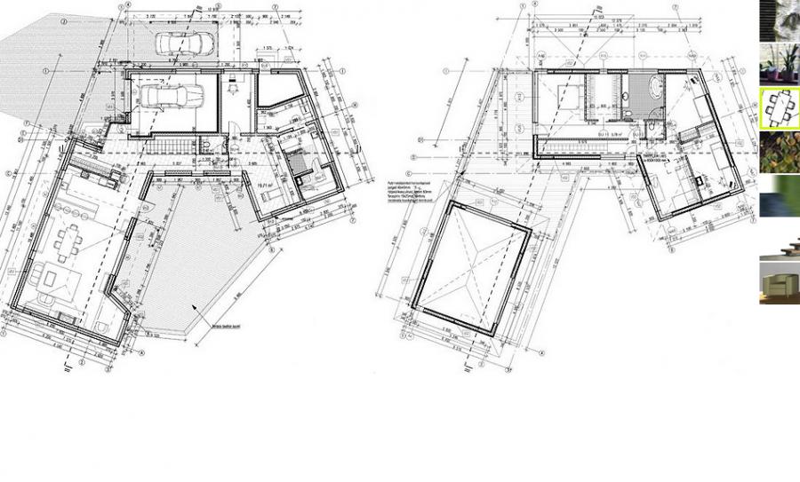
JÕELÄHTMEL eramu
(2013)
KÕRGEMÄE TEE abihoone
(2012)
PÕLDE PÕIK eramu
(2011)
ERAMU B Nõmmel corten
(2011)
HIIUMAAL eramu
(2011)
ILMANDU KÜLA skits
(2011)
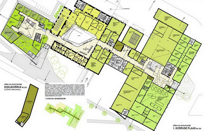
VÜKK tehno-õppehoone
(2011)
SÜMBIOOS õppehoone 1 koht
(2011)
MÄNNITUKA eramukompleks
(2011)
LEPPNEEMES eramu abihoone
(2011)
JÕELÄHTMEL eramu
(2010)
MAHLAMÄE KÜLAS eramu
(2009)
ROBINSON puhkemaja
(2009)
PÄRNU VANALINNAS kontorhoone
(2009)
ZEN PARK kontorhoone
(2009)
NOODA TEE eramu
(2009)
LAAGRIS eramu
(2009)
LUHA TN äri- ja kortermaja
(2008)
HAAPSALU korterelamu
(2008)
LEPPNEEMES eramud
(2007)
MERIRAHUS eramu
(2007)
Koger & Partnerid Peakontor
(2006)
PIRITAL eramu
(2006)
S-MAJA Lohusalus
(2006)
ROCCA AL MARE Vabaajakeskus
(2005)
ÄRIPÄEV peakontor
(2005)
KILU TN eramu
(2005)
PIRITA JÕE ORUS paviljonimaja
(2004)
OSKAR riiulid
(2004)
NEEMEKÜLAS eramu
(2004)
OSKARI TN eramu
(2004)
RANNAMÕISA skits
(2003)
RANNAMÕISAS eramu
(2003)
VANASADAM loodeosa 1 koht OAAS
(2002)
RETROMAJA 1 Pääskülas
(2001)
PÄÄSKÜLA rekon. puitfunk
(1998)
VILJANDI LIDL KONKURSS
(2022)
VESKIPOSTI KONTORHOONE
(2022)
LÄÄNE 9 ERAMU
(2021)
VÕTMEHEINA ERAMU
(2021)
BOGEN Kortermaja Norra
(2021)
TÕNISMÄE Riigigümnaasium
(2021)
KÜLITSE suvila
(2021)
AIANDUSE SEEST
(2020)
IDAKAARE KORTERMAJA
(2020)
ESIMENE CLT KÕRGHOONE EESTIS
(2020)
TAMMETALU ERAMU
(2019)
TONDI HOSTEL
(2019)
kolmnurkne design for sale
(2019)
Sirkel ja Mall FUAJEE
(2019)
KÕRGEMÄE III
(2017)
KÕRGEMÄE II
(2016)
NÕMMEL elamu
(2016)
ROOSTIKU villa
(2016)
SAMBLIKU tee sisekujundus
(2015)
CLT PÕLVA kortermajad 2
(2015)
TREEHAUS
(2015)
PANEELMAJA versioon 2
(2015)
AIANDUSE TN eramu
(2015)
PANEELMAJA ideekonkurss
(2015)
COR-TEN suvila krundile
(2014)
LAULASMAAL eramu
(2014)
VESIVÄRAVA 9 kortermaja
(2013)
TAIBULA poed
(2013)
RAUA 10 kortermaja Tallinn
(2013)
MARDI TN kortermaja
(2013)
J. KÖLERI kortermaja
(2013)
VAATLUSTORN Lääne rannikul
(2013)
CELENTE telekastend
(2012)
ERAMU B Nõmmel krohv + corten
(2011)
ERAMU A Nõmmel
(2011)
PÄRNAÕIE TEE skits
(2011)
PÄRNU JÕE konkurss 1 koht
(2011)
270 MAJA Leppneemes
(2011)
NOAROOTSIS eramukompleks
(2011)
MODULAR passiivrajoon konku
(2011)
KRISTIINES rekonstruktsioon
(2010)
VIIMSI arendus
(2009)
ROMANTIKA eramu
(2009)
MOEBIUS mudaravila konku
(2009)
ZEN PARK sisekujundus
(2009)
TIIGIMAJA Lääne Eesti
(2009)
LAAGRIS eramu sisekujundus
(2009)
ROHUNEEME TEE eramu
(2009)
TALUHOONE 1914
(2008)
MADAL EMMISSIOON hoonestus
(2007)
VÄÄNA-JÕESUU sisekujundus
(2007)
VÄÄNA-JÕESUU suvila
(2007)
WALDHOF Elurajoon konku 2 koht
(2006)
UUS TATARI 6+8 ärikorter
(2006)
LENNUKI TN äri- ja kortermaja
(2006)
VALDLAUCHI elamurajoon
(2005)
BUMERANG suvila Otepääl
(2005)
KOOLI TN korterelamud 1koht
(2005)
ÄRIPÄEV peakontor skeem 1
(2004)
MEPHISTO kohvilaud kapid uksed
(2004)
OSKARI TN sisekujundus
(2004)
BREMENI KÄIK katusekorter
(2004)
RANNAMÕISAS sisekujundus
(2003)
RETROMAJA 2 Nõmmel
(2002)
VESKIMÖLDRES eramu
(2002)
VAARIA INSPIRATSIOON
(2000)